Обяви 0 За нас Контакти
Продава 3-СТАЕН
град София, Павлово
276 463 €
540 714.63 лв.

(2 608 €, 5 100.80 лв./m2)
Цената е с включено ДДС
История на цената
Коригирана в 10:36 на 22 април, 2026 год.
Обявата е посетена 803 пъти.
Площ:
106 m2
Етаж:
3-ти от 5
Газ:
ДА
ТEЦ:
НЕ
Строителство:
Тухла, Ще бъде въведен в експлоатация 2026 г.

Описание на имота:


БЕЗ КОМИСИОННА ОТ КУПУВАЧА!
Пред АКТ 15!

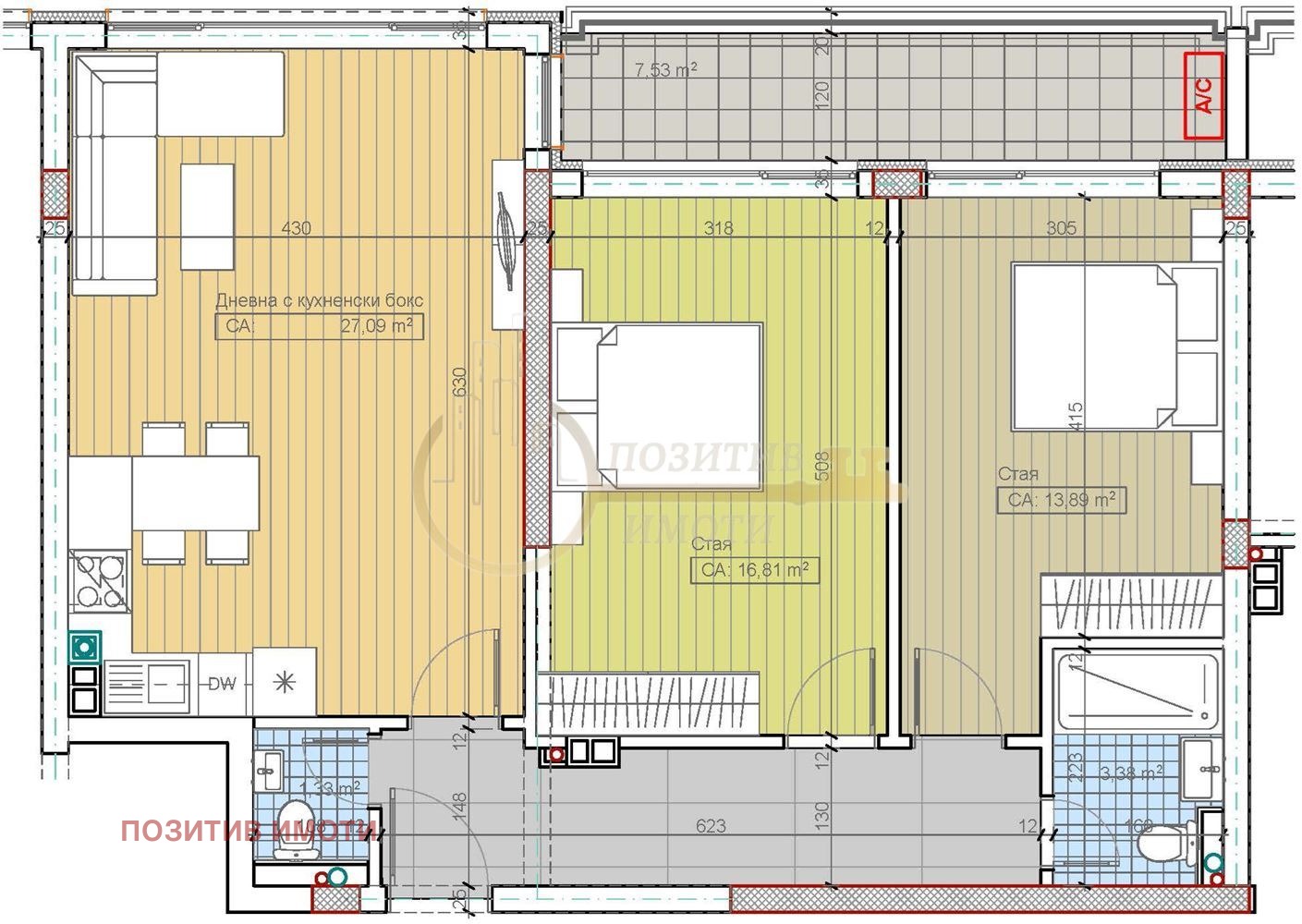
Агенция ПОЗИТИВ ИМОТИ предлага за продажба 3-стаен апартамент със застроена площ 90.58 кв.м. (106.49 кв.м. с идеални части) и мазе с площ 3.51 кв.м. на цена от 276 463 EUR. Сградата се намира в м-т Гърдова глава и е с комуникативна локация, в близост до бул. Никола Петков/ул. Околовръстен път, спирки на градски транспорт, хранителни магазини и Ритейл парк Княжево.
Апартамента се намира на 3-ти етаж (кота +5,70) от 5. Разпределение: входно антре, всекидневна с кухненски бокс, две спални, баня с тоалетна, отделна тоалетна, две тераси.
Отоплението е решено на газ, като има и изводи за климатик. Изложение: запад!
Дограмата е 7 камерна с троен стъклопакет и със стъкло 4 сезона за постигане на максимална топлоизолация и шумоизолация.
Общите части на сградата ще бъдат довършени по следни начин: вход партер: под от грапав гранит срещу пързаляне; стени - гранит; стълбище - под от грапав гранит; стълбищна площадка около асансьор гранит или мрамор; стъклени парапети, метални блиндирани входни врати с покритие от МДФ; асансьор ОТИС - 8 местен с европейски сертификат за достъпна среда за хора в неравностойно положение; апартамента се предлага на замазка и шпакловка с допълнителна ръка шпакловка; има възможност за довършване.
При интерес има възможност за покупка на гаражи/паркоместа. В сградата предлагаме за продажба още апартаменти.

Ако имотът представлява интерес за Вас, моля свържете се с нас и посочете реф.номер 814.
Съдействие при кандидатстване и отпускане на ипотечен и потребителски кредит, без допълнително оскъпяване /преференциални условия и лихви за клиенти на агенцията/.
Тел. за контакт: 0896 42 39 39, e-mail: pozitivimoti@gmail.com, www.pozitivimoti.com
Особености
Тухла
Асансьор
С гараж
Контрол на достъпа
За ремонт
За контакт:
0896 42 39 39
Агенция:
ПОЗИТИВ ИМОТИ
0896423939
ПОЗИТИВ ИМОТИ logo
В imot.bg от 2023 г.
pozitivimoti.imot.bg
Адрес:
област София, гр. София, бул.Гоце Делчев , бл.15
ИЗПРАТИ ЗАПИТВАНЕ
ИЗПРАТИ ЗАПИТВАНЕТО

Продава 3-СТАЕН
град София, Павлово
Обява: 1c177436525450568

276 463 €
540 714.63 лв.
История на цената
(2 608 €, 5 100.80 лв./m2)

Цената е с включено ДДС
ЗАПАЗИ ОБЯВАТА

Местоположение: град София, Павлово

Допълнителни данни за имотите в района и сравнение с други райони

Покажи

Период

и 5 месеца

* Средните цени са определени чрез медианна стойност